Kvarteret Regina
Hvitfeldtsplatsen 7
Rosenlund, Göteborg
Nyckelfärdigt premiumkontor på Hvitfeldtsplatsen – 571 kvm i toppskick med utsikt över stad!
- Kontor
- 571 m²
- Våning 4
Maria Hamrén
Uthyrare

Om lokalen
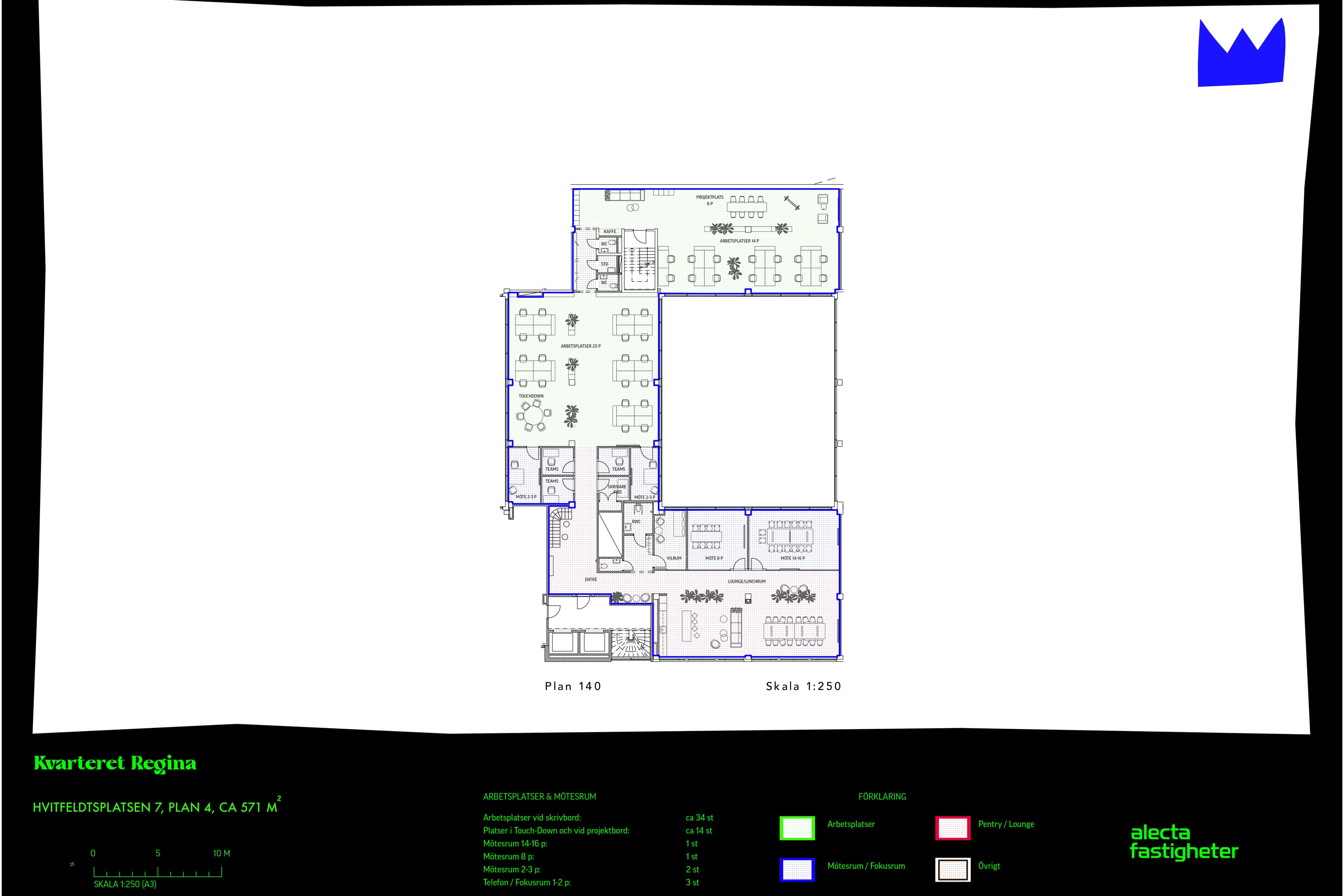
Välkommen till ett unikt tillfälle – ett nyrenoverat, fullt möblerat kontor om 571 kvm, beläget på Hvitfeldtsplatsen med högt och fritt läge. Lokalen är inflyttningsklar omgående och levereras komplett med möbler, textilier, porslin och bestick – på en nivå som sällan erbjuds. Här är det bara att ta med datorn och flytta in. Kontoret erbjuder 34 fullt utrustade arbetsplatser, perfekt för företag som vill etablera sig snabbt utan att tumma på kvalitet eller komfort.
Lokalen är totalrenoverad i en sober, skandinavisk stil med noggrant utvalda material och inredning av hög standard. Det generösa pentryt med köksö och den öppna loungeytan ligger i direkt anslutning till de intilliggande konferensrummen, vilket tillsammans skapar en inbjudande extern zon för möten, pauser och social samvaro. Arbetsplatserna är placerade i ett mer avskilt och privat läge, vilket ger en tydlig och välbalanserad uppdelning mellan representativa ytor och miljöer som främjar arbetsro.
Den höga placeringen i fastigheten ger vidsträckt utsikt över Göteborg, med Engelska kyrkan som en vacker fond. Utanför huset lever området – med caféer, restauranger och kollektivtrafik precis utanför dörren. Detta är en sällsynt möjlighet för företag som söker en prestigefylld, praktisk och direkt användbar lokal i centrala Göteborg.
Egenskaper
- Blackbox
- Coworking i huset
- Fantastisk utsikt
- Gemensam terrass
- Gym
- Konferensanläggning
- Nära kollektivtrafik
- Omklädningsrum med dusch
- Stort serviceutbud
Detaljer
- Lokaltyp
- Kontor
- Yta
- 571 m²
- Våning
- 4
- Hållbarhetscertifiering
- BREEAM Excellent
Hållbarhet
Den här certifieringen är en av världens mest använda inom hållbarhet. BREEAM används för befintliga och nybyggda kommersiella byggnader. Det är en omfattande certifiering som finns i flera olika nivåer.
Dokument
I Regina tar vi vårt varma värdskap på allvar. Därför får du som hyresgäst ta del av en mängd serviceerbjudanden som gör vardagen både bekvämare och mer njutbar. Regina erbjuder både Wellnessavdelning med tillgång till gym, gemensam reception samt Kvarterets egen Blackbox/Eventyta. Se vår separata broschyr för mer information om drottninliga tjänster och drottninliga tillval.
Karta och läge
Kvarteret Regina har fått nytt liv. Det tidigare slutna kontorskomplexet har förvandlats till en öppen, pulserande knutpunkt – mitt i ett av Göteborgs bästa lägen. Här, vid Rosenlund och under bastion Christina Regina, möts citys energi och historisk karaktär i ett kvarter där frihet alltid varit ett självklart ledord. Här är staden alltid nära. Med 72 kollektivtrafiksavgångar i timmen rör du dig smidigt åt alla håll. En mataffär i huset gör vardagen enkel och med hundratals lunchalternativ på gångavstånd får varje dag sin egen smak i Kvarteret Regina.

























